Køge Kommune forbereder sig på at bygge nye boliger i det naturskønne område, Herfølge Kohave, syd for Herfølge.
Gravemaskinerne forventes at være færdige inden årets udgang, hvorefter området vil blive forberedt med stier, veje, vand, dataforbindelser og mere.
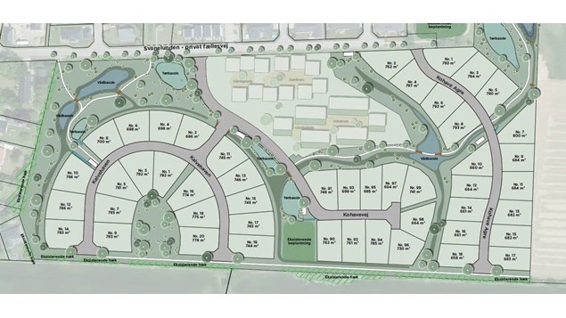
Kommunen udbyder 48 grunde til parcelhuse og har solgt en stor grund til opførelse af omkring 40 boliger i form af dobbelthuse, rækkehuse eller gårdhuse.
Boligerne vil være omgivet af marker og åben himmel, men vil også være tæt på offentlig transport, indkøbsmuligheder, skoler og dagtilbud i Herfølge by.
Borgmester Marie Stærke ser frem til udviklingen af det nye kvarter og understreger, at der vil blive taget hensyn til det naturskønne område i opførelsen af de nye boliger.
Kommunen lægger vægt på klimavenlige løsninger og biodiversitet i de nye friarealer. Regnvand vil blive håndteret i åbne render, grøfter og regnvandsbassiner, hvilket vil bidrage til en større mangfoldighed af dyr og planter og skabe rekreative områder for beboerne. Tilbudsfristen for de nye parcelhusgrunde er 1. november.
https://koege.dk/om-koege-kommune/presse-og-kommunikation/nyheder-og-aktuelt/nyheder/nyt-herfoelge-kvarter-i-landskabelige-omgivelser-er-paa-vej
 
               
             
                 
                 
                